Kindertagesstätte der Ev. St. Thomasgemeinde
Die Kindertagesstätte der Ev. St.Thomasgemeinde stellt sich vor
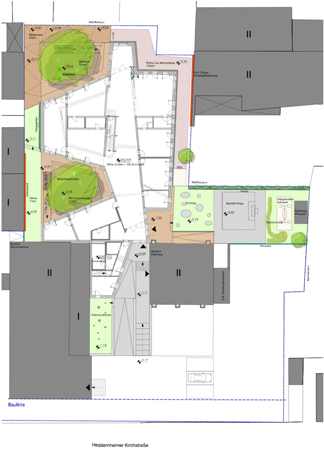
80 Kindern im Alter zwischen 3 und 6 Jahren bieten wir einen Betreuungsplatz. 20 Kinder besuchen die Waldgruppe. Seit Frühjahr 2012 wird ein Neubau der Kita errichtet, der Regelbetrieb läuft weiter.
Hier finden Sie aktuelle Fotos, Planungen und Grundrisse (Klick aufs Bild >> Fotogalerie)
Der Umbau des Pfarrhauses und des Gemeindehauses sowie der Neubau des St. Thomas-Kindergartens
Hier finden Sie die Bilder des vergangenen Jahres (Klick aufs Bild >> Fotogalerie)
Losung des Tages


